Villen im Bauhausstil: Vorschlag 2

Dieser Entwurf ist enthalten in den Versionen:

- meinHausplaner PLUS 100 Häuser Edition

- meinHausplaner PLUS 150 Häuser Edition

- meinHausplaner PRO 150 Häuser Edition

und natürlich in der Profi-Version Bauset-Hausplaner.

 

Möchten Sie diesen Entwurf für sich umplanen und kalkulieren ? Mit den oben aufgeführten meinHausplaner-Versionen kein Problem. Besuchen Sie jetzt den meinHausplaner-Online-Shop - und setzen Sie Ihre Ideen spielerisch einfach am eigenen PC um !

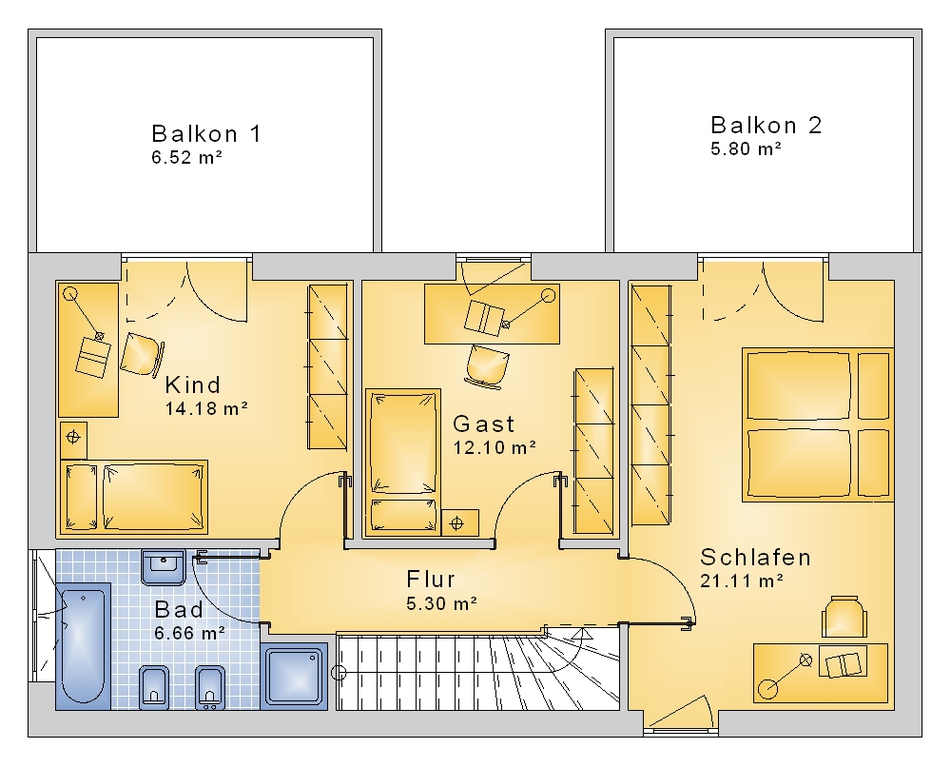
Steckbrief

Wohnfläche gesamt    154,26 m²    
Wohnfläche Erdgeschoss   82,59 m²    
Wohnfläche Dachgeschoss    71,67 m²    
         
Bruttorauminhalt inkl. Keller    806,645 m³    
         
Bruttogeschossfläche inkl. Keller    281,64 m²    
         
Raumaufteilung

     
         
Erdgeschoss   Wohnen/Essen    42,79 m²
    Arbeiten   16,25 m²
    Kochen    9,86 m²
    Diele    5,11 m²
    DU/WC   5,69 m²
    WC    2,89 m²
         
Dachgeschoss   Eltern   21,11 m²
    Kind 1   14,18 m²
    Kind 2   12,10 m²
    Bad    6,66 m²
    Flur   5,30 m²
    Balkon 1    6,52 m²
    Balkon 2   6,66 m²

Die komplette Planung(Grundrisse, Ansichten, Schnitte, Bautragspläne), Mengenberechnung, Kalkulation und Visualisierung dieses Hauses wurde erstellt mit der Software Bauset-Hausplaner.

 

Die kompletten Daten sind als Vorlagen für unsere Softwareprodukte Bauset, Bauset-Hausplaner und meinHausplaner verfügbar.

 

Bauset-Hausplaner basiert auf Bauset und ist ein Produkt der Bott EDV-Systeme GmbH

Verwenden Sie unsere Planungsvorlagen und meinHausplaner-Software - kostenlos für Sie als privaten Bauherren.

 

mehr