Haus mit Walmdach Vorschlag 10

Dieser Entwurf ist reserviert für die Profi-Lösung:

Bauset-Hausplaner.

Wohnfläche gesamt    170,63 m²    
Wohnfläche Erdgeschoss   85,94 m²    
Wohnfläche Dachgeschoss    84,69 m²    
         
Bruttorauminhalt    1039,340 m³    
         
Bruttogeschossfläche    431,16 m²    
         
Raumaufteilung

     
         
Erdgeschoss   Wohnen/Essen     47,01 m²
    Kochen   14,79 m²
    Empfang    12,72 m²
    HWR    6,98 m²
    WC    2,41 m²
    Garerobe   2,03 m²
         
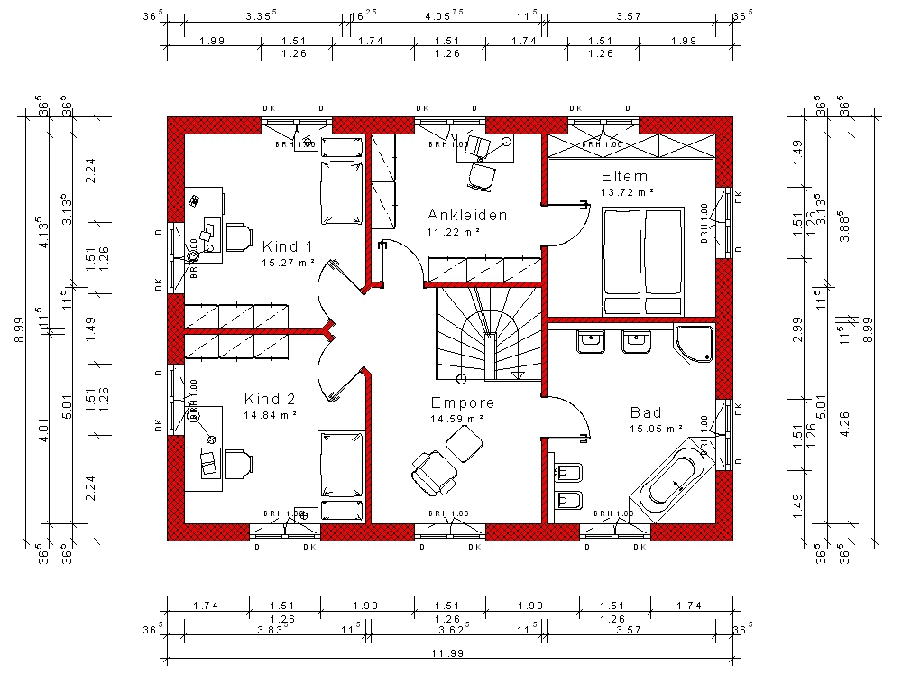
Dachgeschoss   Kind 1    15,27 m²
    Bad    15,05 m²
    Kind 2    14,84 m²
    Empore     14,59 m²
    Eltern   13,72 m²
    Ankleiden   11,22 m²

Die komplette Planung(Grundrisse, Ansichten, Schnitte, Bautragspläne), Mengenberechnung, Kalkulation und Visualisierung dieses Hauses wurde erstellt mit der Software Bauset-Hausplaner.

 

Die kompletten Daten sind als Vorlagen für unsere Softwareprodukte Bauset, Bauset-Hausplaner und meinHausplaner verfügbar.

 

Bauset-Hausplaner basiert auf Bauset und ist ein Produkt der Bott EDV-Systeme GmbH

Verwenden Sie unsere Planungsvorlagen und meinHausplaner-Software - kostenlos für Sie als privaten Bauherren.

 

mehr