Häuser mit Satteldach: Haus SD-119

Dieser Entwurf ist enthalten in den Versionen:

- meinHausplaner PLUS 150 Häuser Edition

- meinHausplaner PRO 150 Häuser Edition

und natürlich in der Profi-Version Bauset-Hausplaner.

 

Möchten Sie diesen Entwurf für sich umplanen und kalkulieren ? Mit den oben aufgeführten meinHausplaner-Versionen kein Problem. Besuchen Sie jetzt den meinHausplaner-Online-Shop - und setzen Sie Ihre Ideen spielerisch einfach am eigenen PC um !

Wohnfläche gesamt   214,95 m²    
Wohnfläche Einliegerwohnung   59,48 m²    
Wohnfläche Erdgeschoss   57,83 m²    
Wohnfläche Dachgeschoss   97,64 m²    
         
Bruttorauminhalt   1317 m³    
         
Bruttogeschossfläche   428,28 m²    
         
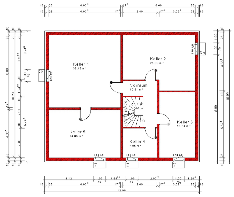
Raumaufteilung

     
         
Einliegerwohnung   Wohnen/Essen   23,01 m²
    Schlafen 2   17,57 m²
    Kochen   5,93 m²
    Bad 2   5,70 m²
    Diele 2   5,09 m²
    Abst.   2,18 m²
         
Erdgeschoss   Wohnen 1   30,18 m²
    Kochen 1   8,44 m²
    Hauswirtschaft   7,82 m²
    Diele 1   7,75 m²
    Dusche/WC   3,64 m²
         
Dachgeschoss   Eltern   25,28 m²
    Kind 1   18,37 m²
    Bad   15,77 m²
    Kind 2   14,07 m²
    Kind 3   15,07 m²
    Flur   9,08 m²

Die komplette Planung (Vertriebsgrundrisse, Ansichten, Schnitte, Bautragspläne), Mengenberechnung und Visualisierung aller Häuser wurde erstellt mit der Software Bauset-Hausplaner.

 

Die kompletten Daten sind als Vorlagen für unsere Softwareprodukte Bauset, Bauset-Hausplaner und meinHausplaner verfügbar.

 

Bauset-Hausplaner basiert auf Bauset und ist ein Produkt der Bott EDV-Systeme GmbH

Verwenden Sie unsere Planungsvorlagen und meinHausplaner-Software - kostenlos für Sie als privaten Bauherren.

 

mehr