Häuser mit Satteldach: Haus SD-100

Dieser Entwurf ist enthalten in den Versionen:

- meinHausplaner PLUS 150 Häuser Edition

- meinHausplaner PRO 150 Häuser Edition

und natürlich in der Profi-Version Bauset-Hausplaner.

 

Möchten Sie diesen Entwurf für sich umplanen und kalkulieren ? Mit den oben aufgeführten meinHausplaner-Versionen kein Problem. Besuchen Sie jetzt den meinHausplaner-Online-Shop - und setzen Sie Ihre Ideen spielerisch einfach am eigenen PC um !

Wohnfläche gesamt   168,55 m²    
Wohnfläche Erdgeschoss   95,04 m²    
Wohnfläche Dachgeschoss   73,51 m²    
         
Bruttorauminhalt   1003 m³    
         
Bruttogeschossfläche   348,48 m²    
         
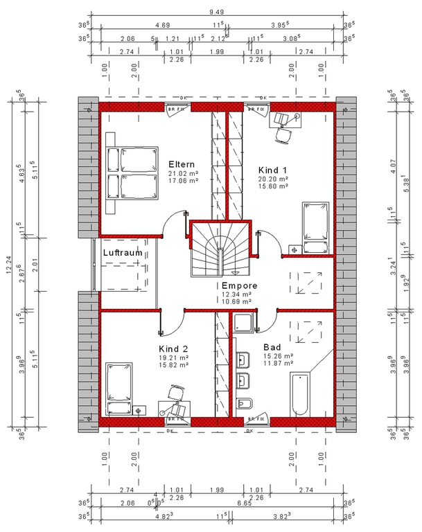
Raumaufteilung

     
         
Erdgeschoss   Wohnen/Essen    33,42 m²
    Kochen    17,68 m²
    Arbeiten    14,68m²
    Hauswirtschaft    13,99 m²
    Diele    12,95 m²
    WC    2,32 m²
         
Dachgeschoss   Eltern    17,64 m²
    Kind 1    16,27 m²
    Kind 2    16,31 m²
    Bad    12,36 m²
    Empore    10,93 m²

Die komplette Planung (Vertriebsgrundrisse, Ansichten, Schnitte, Bautragspläne), Mengenberechnung und Visualisierung aller Häuser wurde erstellt mit der Software Bauset-Hausplaner.

 

Die kompletten Daten sind als Vorlagen für unsere Softwareprodukte Bauset, Bauset-Hausplaner und meinHausplaner verfügbar.

 

Bauset-Hausplaner basiert auf Bauset und ist ein Produkt der Bott EDV-Systeme GmbH

Verwenden Sie unsere Planungsvorlagen und meinHausplaner-Software - kostenlos für Sie als privaten Bauherren.

 

mehr