Häuser mit Satteldach: Haus SD-166

Dieser Entwurf ist reserviert für die Profi-Lösung:

Bauset-Hausplaner.

Wohnfläche gesamt    134,27 m²    
Wohnfläche Erdgeschoss   75,88 m²    
Wohnfläche Dachgeschoss   58,39 m²    
         
Bruttorauminhalt    827,864 m³    
         
Bruttogeschossfläche    295,49 m²    
         
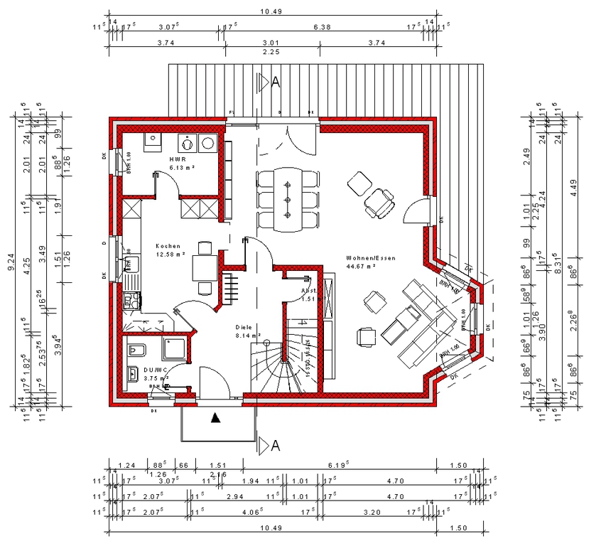
Raumaufteilung

     
         
Erdgeschoss   Wohnen/Essen     43,66 m²
    Kochen   12,26 m²
    Diele    7,94 m²
    Hauswirtschaft   5,95 m²
    DU/WC    3,46 m²
    Abst.   2,61 m²
         
Dachgeschoss   Eltern    15,18 m²
    Kind 2    10,73 m²
    Kind 1    10,94 m²
    Gast     9,15 m²
    Bad   6,82 m²
    Flur   5,57 m²

Die komplette Planung(Grundrisse, Ansichten, Schnitte, Bautragspläne), Mengenberechnung, Kalkulation und Visualisierung dieses Hauses wurde erstellt mit der Software Bauset-Hausplaner.

 

Die kompletten Daten sind als Vorlagen für unsere Softwareprodukte Bauset, Bauset-Hausplaner und meinHausplaner verfügbar.

 

Bauset-Hausplaner basiert auf Bauset und ist ein Produkt der Bott EDV-Systeme GmbH