Häuser mit Satteldach: Haus SD-21

Dieser Entwurf ist enthalten in den Versionen:

- meinHausplaner PLUS 50 Häuser Edition

- meinHausplaner PLUS 100 Häuser Edition

- meinHausplaner PLUS 150 Häuser Edition

- meinHausplaner PRO 150 Häuser Edition

und natürlich in der Profi-Version Bauset-Hausplaner.

 

Möchten Sie diesen Entwurf für sich umplanen und kalkulieren ? Mit den oben aufgeführten meinHausplaner-Versionen kein Problem. Besuchen Sie jetzt den meinHausplaner-Online-Shop - und setzen Sie Ihre Ideen spielerisch einfach am eigenen PC um !

Steckbrief

Wohnfläche gesamt   121,57 m²    
Wohnfläche Erdgeschoss   70,95 m²    
Wohnfläche Dachgeschoss   50,62 m²    
         
Bruttorauminhalt   732,545 m³    
         
Bruttogeschossfläche   264,93 m²    
         
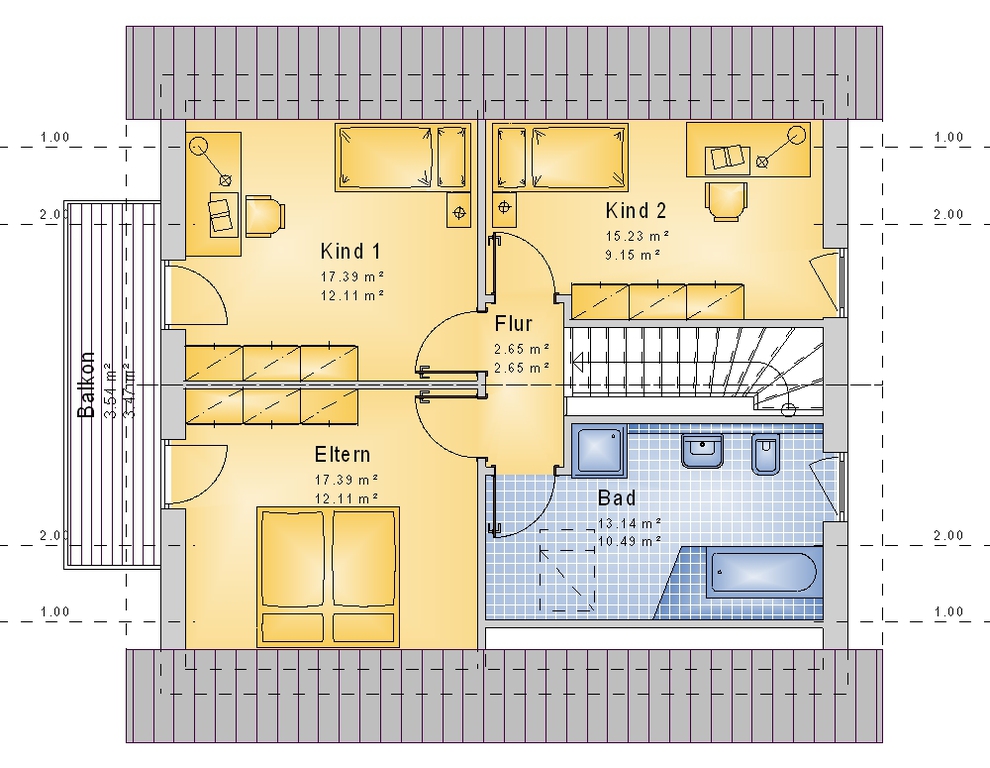
Raumaufteilung

     
         
Erdgeschoss   Wohnen/Essen    37,45 m²
    Kochen    14,19 m²
    Diele    9,15 m²
    Hauswirtschaft    7,00 m²
    WC    3,06 m²
         
Dachgeschoss   Eltern    12,28 m²
    Kind 1    12,28 m²
    Kind 2    9,34 m²
    Bad    10,54 m²
    Flur   2,65 m²
    Balkon   2,65 m²

Die komplette Planung(Grundrisse, Ansichten, Schnitte, Bautragspläne), Mengenberechnung, Kalkulation und Visualisierung dieses Hauses wurde erstellt mit der Software Bauset-Hausplaner.

 

Die kompletten Daten sind als Vorlagen für unsere Softwareprodukte Bauset, Bauset-Hausplaner und meinHausplaner verfügbar.

 

Bauset-Hausplaner basiert auf Bauset und ist ein Produkt der Bott EDV-Systeme GmbH