Häuser mit Satteldach: Haus SD-155

Dieser Entwurf ist reserviert für die Profi-Lösung:

Bauset-Hausplaner.

Wohnfläche gesamt    141,02 m²    
Wohnfläche Erdgeschoss   77,76 m²    
Wohnfläche Dachgeschoss    63,26 m²    
         
Bruttorauminhalt    823,672 m³    
         
Bruttogeschossfläche    296,40 m²    
         
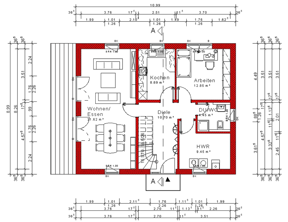
Raumaufteilung

     
         
Erdgeschoss   Wohnen/Essen     31,62 m²
    Arbeiten   12,85 m²
    Diele    10,70 m²
    Hauswirtschaft    9,45 m²
    Kochen   8,69 m²
    DU/WC    4,45 m²
         
Dachgeschoss   Eltern    15,81 m²
    Kind 2    15,32 m²
    Kind 1    14,05 m²
    Bad     12,23 m²
    Flur   5,85 m²

Die komplette Planung(Grundrisse, Ansichten, Schnitte, Bautragspläne), Mengenberechnung, Kalkulation und Visualisierung dieses Hauses wurde erstellt mit der Software Bauset-Hausplaner.

 

Die kompletten Daten sind als Vorlagen für unsere Softwareprodukte Bauset, Bauset-Hausplaner und meinHausplaner verfügbar.

 

Bauset-Hausplaner basiert auf Bauset und ist ein Produkt der Bott EDV-Systeme GmbH