Haus des Monats Februar 2019

3D-Rundlauf um Gebäude: Bitte auf Foto oben klicken !

 

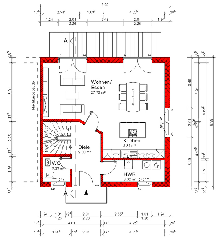
Egal ob als Doppelhaushälfte oder als Reihenhaus - der Entwurf zeichnet sich durch klare Linien und eine optimale Nutzung des Baugrunds aus. Das Staffelgeschoss mit großer Dachterrasse macht das Dachgeschoss zum luxoriösen Penthaus. Viel Platz für die Familie mit zwei Kindern in Verbidung mit der klassischen Einteilung EG Wohnen und OG Schlafen. Die innenliegende halbgewendelte Treppe sorgt für eine Minimierung der Flurflächen. Die Farbakzente der Fassaden verbinden die bodentiefen Elemente im Erd- und Obergeschosszu einem homogenen Ganzen. 

 

Sie sehen hier einen klassischen Entwurf für Reihenbebauung, wie er in 100-facher Variation schon in Deutschland realisiert wurde.

3D-Rundlauf um Gebäude: Bitte auf Foto oben klicken !

Zur Online-3D-Begehung Erdgeschoss bitte Geschossperspektive anklicken !

Zur Online-3D-Begehung Obergeschoss bitte Geschossperspektive anklicken !

Zur Online-3D-Begehung Dachgeschoss bitte Geschossperspektive anklicken !

Die komplette Planung(Grundrisse, Ansichten, Schnitte, Bautragspläne), Mengenberechnung, Kalkulation und Visualisierung dieses Hauses wurde erstellt mit der Software Bauset-Hausplaner.

 

Die kompletten Daten sind als Vorlagen für unsere Softwareprodukte Bauset, Bauset-Hausplaner und meinHausplaner verfügbar.

 

Bauset-Hausplaner basiert auf Bauset und ist ein Produkt der Bott EDV-Systeme GmbH

Verwenden Sie unsere Planungsvorlagen und meinHausplaner-Software - kostenlos für Sie als privaten Bauherren.

 

mehr