Haus des Monats Januar 2018

Beim Haus des Monats im Januar 2018  fallen zwei Dinge sofort ins Auge: das Flachdach mit großem Dachüberstand und die großzügige Terrassenüberdachung mit Dachterrasse im Obergeschoss. Der moderne Emtwurf mit großen Glasflächen wirkt trotz der Größe des Gebäudes so fast filigran und sehr einladend.

 

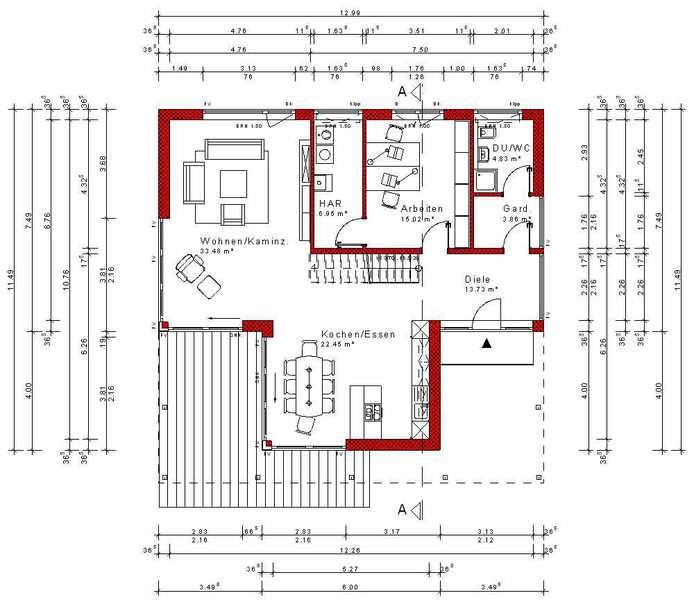
Im Erdgeschoss ist der Koch- und Essbereich im verglasten Erkerbereich untergebracht und so vom Wohnbereich abgetrennt. Die großen Schiebetüren im Wohn- und Essbereich verbinden die beiden Zonen im Bereich der überdachten Terrasse. Die geradläufige Treppe spart Platz und ist kostengüntig zu realisieren.

 

Im Obergeschoss trennt die Dachterrasse den Bereich für Eltern und Kind. Der große Flur mit Zugang zur Dachterrasse lädt direkt zum Verweilen ein. Ein gelungenes Raumkonzept für die Familie mit einem Kind.

 

3D-Begehung Erdgeschoss

Zur 3D-Begehung des Grundrisses: Bitte Bild anklicken !

3D-Begehung Obergeschoss

Zur 3D-Begehung des Grundrisses: Bitte Bild anklicken !

Die komplette Planung(Grundrisse, Ansichten, Schnitte, Bautragspläne), Mengenberechnung, Kalkulation und Visualisierung dieses Hauses wurde erstellt mit der Software Bauset-Hausplaner.

 

Die kompletten Daten sind als Vorlagen für unsere Softwareprodukte Bauset, Bauset-Hausplaner und meinHausplaner verfügbar.

 

Bauset-Hausplaner basiert auf Bauset und ist ein Produkt der Bott EDV-Systeme GmbH

Verwenden Sie unsere Planungsvorlagen und meinHausplaner-Software - kostenlos für Sie als privaten Bauherren.

 

mehr