Haus des Monats Juli 2017

Das Haus des Monats Juli ist ein modern gestaltetes Satteldachhaus auf annähernd quadratischem Grundriss. Das Dach mit den kleinen Dachüberständen erhält einen tollen architektonischen Akzent durch das Flachdach-Querhaus über dem elterlichen Schlafzimmer. Der zurück gesetzte Eingang strutkuriert die Fassade zur Strasse hin.

 

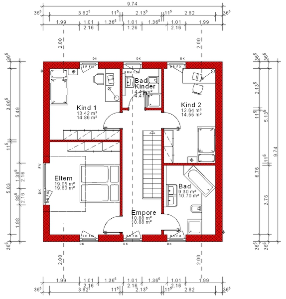
Die moderne Architektur drückt sich im Innenbereich durch die geradläufige Treppenanlage und die geschickt patzierten großen Hebe-Schiebetüren aus. Der erhöhte Kniestock im Dachgeschoss schafft Platz für großzügige Kinderzimmer. Sinnvoll ist das zweite kleine Kinderbad, das aleternativ durch enen Abestellraum ersetzt werden kann.

Zur 3D-Begehung Erdgeschoss bitte Geschosspserpektive anklicken !

Zur 3D-Begehung Dachgeschoss bitte Geschosspserpektive anklicken !

Die komplette Planung(Grundrisse, Ansichten, Schnitte, Bautragspläne), Mengenberechnung, Kalkulation und Visualisierung dieses Hauses wurde erstellt mit der Software Bauset-Hausplaner.

 

Die kompletten Daten sind als Vorlagen für unsere Softwareprodukte Bauset, Bauset-Hausplaner und meinHausplaner verfügbar.

 

Bauset-Hausplaner basiert auf Bauset und ist ein Produkt der Bott EDV-Systeme GmbH

Verwenden Sie unsere Planungsvorlagen und meinHausplaner-Software - kostenlos für Sie als privaten Bauherren.

 

mehr