Häuser mit Satteldach: Haus SD-107

Dieser Entwurf ist enthalten in den Versionen:

- meinHausplaner PLUS 150 Häuser Edition

- meinHausplaner PRO 150 Häuser Edition

und natürlich in der Profi-Version Bauset-Hausplaner.

 

Möchten Sie diesen Entwurf für sich umplanen und kalkulieren ? Mit den oben aufgeführten meinHausplaner-Versionen kein Problem. Besuchen Sie jetzt den meinHausplaner-Online-Shop - und setzen Sie Ihre Ideen spielerisch einfach am eigenen PC um !

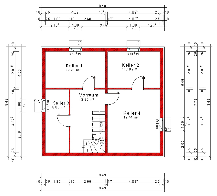
Steckbrief

Wohnfläche gesamt   108,11 m²    
Wohnfläche Erdgeschoss   62,95 m²    
Wohnfläche Dachgeschoss    45,16 m²    
         
Bruttorauminhalt inkl. Keller    670,968 m³    
         
Bruttogeschossfläche inkl. Keller    241,71 m²    
         
Raumaufteilung

     
         
Erdgeschoss   Wohnen/Essen    31,86 m²
    Kochen   14,48 m²
    Diele    8,49 m²
    Hauswirtschaft   5,23 m²
    WC    2,89 m²
         
Dachgeschoss   Eltern    12,03 m²
    Kind 1    11,12 m²
    Kind 2    10,93 m²
    Bad     7,43 m²
    Flur   3,65 m²

Die komplette Planung(Grundrisse, Ansichten, Schnitte, Bautragspläne), Mengenberechnung, Kalkulation und Visualisierung dieses Hauses wurde erstellt mit der Software Bauset-Hausplaner.

 

Die kompletten Daten sind als Vorlagen für unsere Softwareprodukte Bauset, Bauset-Hausplaner und meinHausplaner verfügbar.

 

Bauset-Hausplaner basiert auf Bauset und ist ein Produkt der Bott EDV-Systeme GmbH

Verwenden Sie unsere Planungsvorlagen und meinHausplaner-Software - kostenlos für Sie als privaten Bauherren.

 

mehr