Häuser mit Satteldach: Haus SD-113

Dieser Entwurf ist enthalten in den Versionen:

- meinHausplaner PLUS 150 Häuser Edition

- meinHausplaner PRO 150 Häuser Edition

und natürlich in der Profi-Version Bauset-Hausplaner.

 

Möchten Sie diesen Entwurf für sich umplanen und kalkulieren ? Mit den oben aufgeführten meinHausplaner-Versionen kein Problem. Besuchen Sie jetzt den meinHausplaner-Online-Shop - und setzen Sie Ihre Ideen spielerisch einfach am eigenen PC um !

Steckbrief

Wohnfläche gesamt   100,61 m²    
Wohnfläche Erdgeschoss   57,52 m²    
Wohnfläche Dachgeschoss    43,09 m²    
         
Bruttorauminhalt inkl. Keller    613,257 m³    
         
Bruttogeschossfläche inkl. Keller    221,49 m²    
         
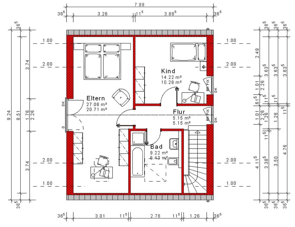
Raumaufteilung

     
         
Erdgeschoss   Wohnen/Essen     31,8 m²
    Kochen     9,47 m²
    Diele     9,56 m²
    Hauswirtschaft   4,60 m²
    WC    2,08 m²
         
Dachgeschoss   Eltern    20,96 m²
    Kind    10,44 m²
    Bad     6,54 m²
    Flur    5,15 m²

Die komplette Planung(Grundrisse, Ansichten, Schnitte, Bautragspläne), Mengenberechnung, Kalkulation und Visualisierung dieses Hauses wurde erstellt mit der Software Bauset-Hausplaner.

 

Die kompletten Daten sind als Vorlagen für unsere Softwareprodukte Bauset, Bauset-Hausplaner und meinHausplaner verfügbar.

 

Bauset-Hausplaner basiert auf Bauset und ist ein Produkt der Bott EDV-Systeme GmbH

Verwenden Sie unsere Planungsvorlagen und meinHausplaner-Software - kostenlos für Sie als privaten Bauherren.

 

mehr