Häuser mit Satteldach: Haus SD-263

Dieser Entwurf ist reserviert für die Profi-Lösung:

Bauset-Hausplaner.

Wohnfläche gesamt    119,34 m²    
Wohnfläche Erdgeschoss   64,52 m²    
Wohnfläche Dachgeschoss    54,82 m²    
         
Bruttorauminhalt    693,424 m³    
         
Bruttogeschossfläche    255,96 m²    
         
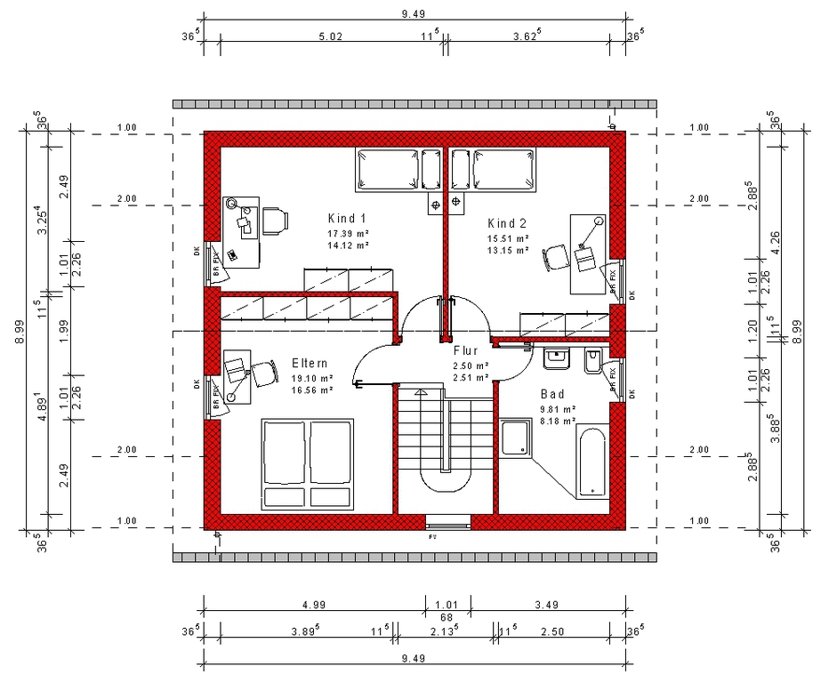
Raumaufteilung

     
         
Erdgeschoss   Wohnen/Essen     33,42 m²
    Kochen   10,27 m²
    Hauswirtschaft    8,05 m²
    Diele    7,07 m²
    Abst.   3,02 m²
    WC    2,69 m²
         
Dachgeschoss   Eltern   16,64 m²
    Kind 1    14,22 m²
    Kind 2    13,22 m²
    Bad     8,23 m²
    Flur   2,51 m²

>

Die komplette Planung(Grundrisse, Ansichten, Schnitte, Bautragspläne), Mengenberechnung, Kalkulation und Visualisierung dieses Hauses wurde erstellt mit der Software Bauset-Hausplaner.

 

Die kompletten Daten sind als Vorlagen für unsere Softwareprodukte Bauset, Bauset-Hausplaner und meinHausplaner verfügbar.

 

Bauset-Hausplaner basiert auf Bauset und ist ein Produkt der Bott EDV-Systeme GmbH

Verwenden Sie unsere Planungsvorlagen und meinHausplaner-Software - kostenlos für Sie als privaten Bauherren.

 

mehr