Doppelhäuser: Haus DH-04

Dieser Entwurf ist enthalten in den Versionen:

- meinHausplaner PLUS 50 Häuser Edition

- meinHausplaner PLUS 100 Häuser Edition

- meinHausplaner PLUS 150 Häuser Edition

- meinHausplaner PRO 150 Häuser Edition

und natürlich in der Profi-Version Bauset-Hausplaner.

 

Möchten Sie diesen Entwurf für sich umplanen und kalkulieren ? Mit den oben aufgeführten meinHausplaner-Versionen kein Problem. Besuchen Sie jetzt den meinHausplaner-Online-Shop - und setzen Sie Ihre Ideen spielerisch einfach am eigenen PC um !

Wohnfläche gesamt   135,29 m²    
Wohnfläche Erdgeschoss   55,47 m²    
Wohnfläche Obergeschoss   53,65 m²    
Wohnfläche Dachgeschoss   26,17 m²    
         
Bruttorauminhalt   722 m³    
         
Bruttogeschossfläche   282,15 m²    
         
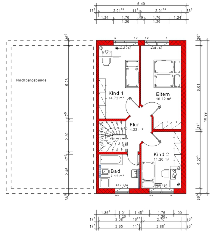
Raumaufteilung

     
         
Erdgeschoss   Wohnen/Essen   33,67 m²
    Kochen   10,22 m²
    Diele   7,18 m²
    WC   2,55 m²
    Hauswirtschaft   1,85 m²
         
Obergeschoss   Eltern   16,07 m²
    Kind 1   14,67 m²
    Kind 2   11,20 m²
    Bad   7,12 m²
    Flur   4,59 m²
         
Dachgeschoss   Studio   20,92 m²
    Abstellraum   5,25 m²

Die komplette Planung (Vertriebsgrundrisse, Ansichten, Schnitte, Bautragspläne), Mengenberechnung und Visualisierung aller Häuser wurde erstellt mit der Software Bauset-Hausplaner.

 

Die kompletten Daten sind als Vorlagen für unsere Softwareprodukte Bauset, Bauset-Hausplaner und meinHausplaner verfügbar.

 

Bauset-Hausplaner basiert auf Bauset und ist ein Produkt der Bott EDV-Systeme GmbH

Verwenden Sie unsere Planungsvorlagen und meinHausplaner-Software - kostenlos für Sie als privaten Bauherren.

 

mehr