Doppelhäuser: Haus DH-05

Dieser Entwurf ist enthalten in den Versionen:

- meinHausplaner PLUS 50 Häuser Edition

- meinHausplaner PLUS 100 Häuser Edition

- meinHausplaner PLUS 150 Häuser Edition

- meinHausplaner PRO 150 Häuser Edition

und natürlich in der Profi-Version Bauset-Hausplaner.

 

Möchten Sie diesen Entwurf für sich umplanen und kalkulieren ? Mit den oben aufgeführten meinHausplaner-Versionen kein Problem. Besuchen Sie jetzt den meinHausplaner-Online-Shop - und setzen Sie Ihre Ideen spielerisch einfach am eigenen PC um !

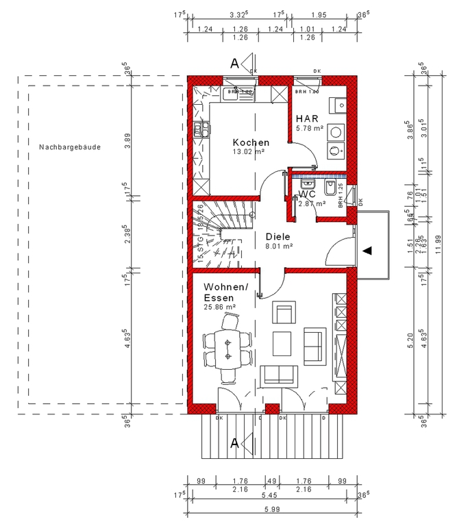
Wohnfläche gesamt   100,79 m²    
Wohnfläche Erdgeschoss   55,71 m²    
Wohnfläche Dachgeschoss   45,08 m²    
         
Bruttorauminhalt   617 m³    
         
Bruttogeschossfläche   212,26 m²    
         
Raumaufteilung

     
         
Erdgeschoss   Wohnen/Essen   25,92 m²
    Kochen   13,02 m²
    Diele   8,12 m²
    Hauswirtschaft   5,78 m²
    WC   2,87 m²
         
Dachgeschoss   Eltern   12,49 m²
    Kind 2   11,30 m²
    Kind 1   10,38 m²
    Bad   6,01 m²
    Flur   4,90 m²

Die komplette Planung (Vertriebsgrundrisse, Ansichten, Schnitte, Bautragspläne), Mengenberechnung und Visualisierung aller Häuser wurde erstellt mit der Software Bauset-Hausplaner.

 

Die kompletten Daten sind als Vorlagen für unsere Softwareprodukte Bauset, Bauset-Hausplaner und meinHausplaner verfügbar.

 

Bauset-Hausplaner basiert auf Bauset und ist ein Produkt der Bott EDV-Systeme GmbH

Verwenden Sie unsere Planungsvorlagen und meinHausplaner-Software - kostenlos für Sie als privaten Bauherren.

 

mehr