Häuser mit Pultdach: Haus PD-16

Dieser Entwurf ist reserviert für die Profi-Lösung:

Bauset-Hausplaner.

Wohnfläche gesamt   142,27 m²    
Wohnfläche Erdgeschoss   72,00 m²    
Wohnfläche Dachgeschoss   70,27 m²    
         
Bruttorauminhalt    830,047 m³    
         
Bruttogeschossfläche    277,35 m²    
         
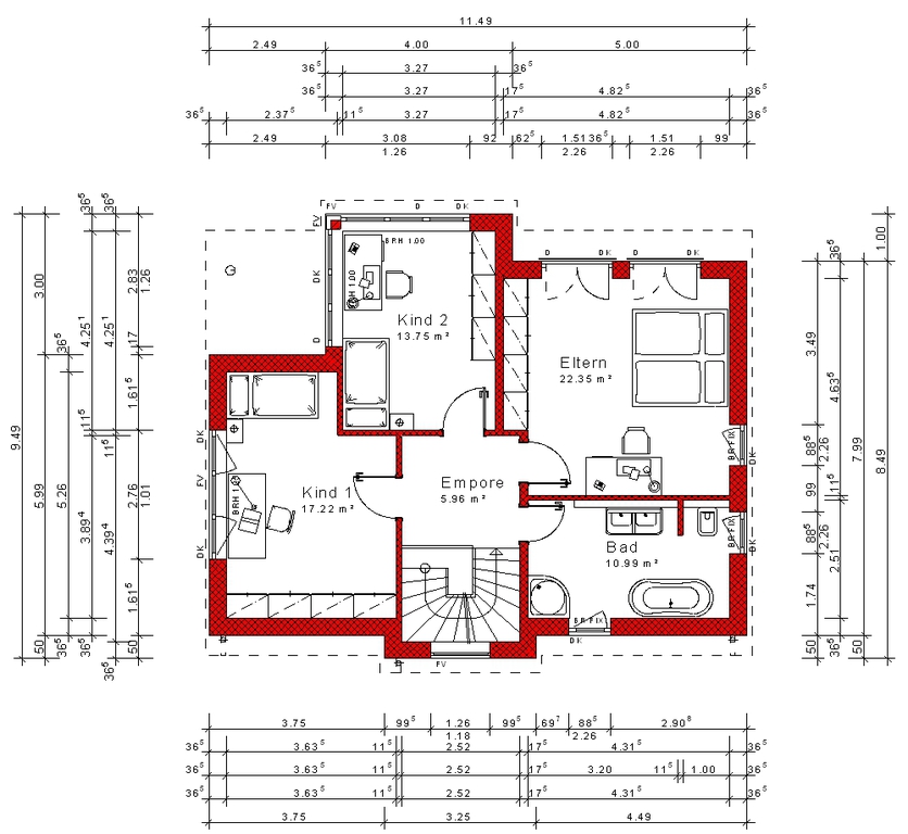
Raumaufteilung

     
         
Erdgeschoss   Wohnen/Essen     40,85 m²
    Diele   8,62 m²
    Arbeiten   8,14 m²
    Kochen    7,37 m²
    Hauswirtschaft   4,71 m²
    WC    2,31 m²
         
Dachgeschoss   Eltern    22,35 m²
    Kind 1    17,22 m²
    Kind 2    13,75 m²
    Bad     10,99 m²
    Empore   5,96 m²

Die komplette Planung(Grundrisse, Ansichten, Schnitte, Bautragspläne), Mengenberechnung, Kalkulation und Visualisierung dieses Hauses wurde erstellt mit der Software Bauset-Hausplaner.

 

Die kompletten Daten sind als Vorlagen für unsere Softwareprodukte Bauset, Bauset-Hausplaner und meinHausplaner verfügbar.

 

Bauset-Hausplaner basiert auf Bauset und ist ein Produkt der Bott EDV-Systeme GmbH

Verwenden Sie unsere Planungsvorlagen und meinHausplaner-Software - kostenlos für Sie als privaten Bauherren.

 

mehr